Chalet moderne pensé pour une vie à l’année : 3 chambres, 1 salle de bain, 1 WC et un salon-cuisine > 45 m². Charpente traditionnelle offrant un volume cathédrale et de larges ouvertures (portes/fenêtres) pour une belle luminosité.
Chalet en bois habitable de 80m² en plain pied
Article mis à jour le 25-09-2025
Créé pour accueillir une famille toute l'année, ce chalet en bois habitable de 80m² dispose de 3 chambres, une salle de bain, un wc et un salon-cuisine de plus de 45m².
Ce chalet au look moderne a initiallement été pensé pour un projet en Isère, à plus de 1000 mètres d'altitude. Il marrie subtilement les codes traditionnels de l'habitat montagnard et les matériaux modernes, tels que le bac acier et les menuiseries anthracites.
La famille disposera d'une pièce de vie unique pour la cuisine, le séjour et le salon. La charpente traditionnelle de ce modèle permet d'avoir une belle hauteur sous plafond, de type cathédrale, offrant ainsi une sensation d'espace et d'ouverture qui sera renforcée par la présence de nombreuses portes et fenêtres de grande taille.
Pour les familles souhaitant plus d'espace de stockage, ce chalet peut aussi être construit avec un garage accolé.
Comme tous nos modèles, ce chalet peut être modifié sur-mesure, proposé en kit (pour de l'autoconstruction), en hors d'eau et hors d'air ou livré-monté. Dans tous les cas, il sera pensé pour la norme RE2020 et respectera les critères d'isolation fixés selon la localisation de votre projet.
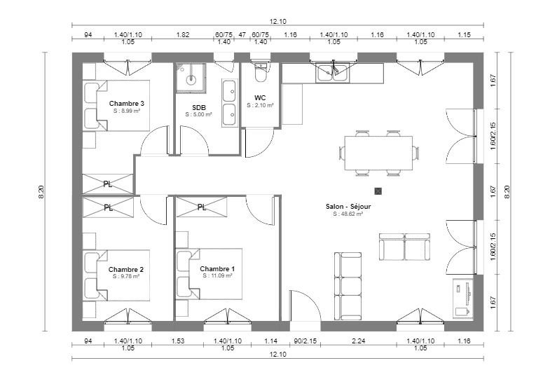
Plan de ce chalet de 80m²
Plan du rez-de-chaussée
| Emprise au sol | 100m² |
| Surface habitable | 86m² |
| Chambres | 3 |
| Hauteur totale | 4.30m |
| Pente de toit | 35° |
| Dépassées de toit | 50cm en bas de pente et 80cm aux pignons |
Fondations et dalle

Ce chalet en bois pourra reposer sur différents types de fondations, qui dépendront principalement du type de terrain sur lequel il sera installé.
- Sur terrain plat, non rocheux et non argileux : tous les types de fondations sont possibles. Vous pourrez ainsi, selon votre budget et vos préférences, opter pour des pieux vissés, une dalle en béton ou un vide sanitaire.
- Sur terrain argileux : vous devrez soit aller chercher une stabilité avec des fondations profondes, ou réaliser un radier superficiel.
- Sur terrain en pente : nous conseillons les pieux vissés, sauf si vous souhaitez réaliser un sous sol. Dans ce cas, il vous sera nécessaire de prévoir une dalle en bois isolée avec 20cm d'isolant semi-rigide ou vrac (ex : ouate de cellulose).
Dans tous les cas, le type de terrain devra être déterminé par une étude de sol G2, réalisée par un cabinet d'ingénierie spécialisé. Cette étude coûte quelques centaines d'euros et vous permet de choisir le type de fondation adaptée. En cas d'achat du terrain, elle doit être fournie par le vendeur. Elle pourra vous être demandée par votre mairie dans le cadre du dossier de permis de construire.
Murs isolés RE2020

Les murs de ce chalet sont prévus pour une habitation toute l'année. Ils respectent les normes RE2020 qui concernent l'isolation et la gestion de l'énergie dans l'habitat individuel.
Ils pourront être construits en ossature bois ou en madriers.
- Dans le cas de l'ossature bois, nous recommandons des montants de 145mm minimum, ainsi qu'une isolation supplémentaire par l'intérieur ou l'extérieur. Le but est en effet d'atteindre un coefficient de résistance thermique de 5 ou 6.
- Dans le cas de la construction en bois massif, une épaisseur de madriers de 44mm est possible en zone de plaine. 68mm minimum sont recommandés en zone de montagne. Le doublage d'isolation pourra se faire par l'intérieur ou l'extérieur avec un isolant respirant de type semi-rigide (laine de roche ou laine de bois).
Pour respecter un habillage de style alpin, le bardage sera en bois (pin autoclave, douglas ou mélèze), mais il est possible d'opter pour un bardage sans entretien (fibro-ciment ou composite) lorsque cela est permis par les règlementations locales.
La finition enduite ou crépie sera possible uniquement pour ls murs en ossature bois.
Toiture de chalet isolée RE2020

La charpente de ce chalet peut être de 2 types :
- Charpente traditionnelle : comme son nom l'indique, ce type de charpente est utilisé dans les constructions traditionnelles. Le dessous de la toiture est visible dans les pièces intérieures et le salon peut ainsi bénéficier d'une grande hauteur sous plafond. C'est l'option la plus coûteuse.
- Charpente à fermettes : cette charpente moins coûteuse permet de raliser un plafond à hauteur standard (ex : 2m50). La sous face devra alors être habillée en placo ou lambris, et il sera possible d'utiliser les combles pour le stockage de la VMC.
Dans tous les cas, l'isolation de la toiture devra être adaptée à la localisation du projet pour respecter la norme RE2020 et offrir un bon confort d'isolation toute l'année. Une résistance thermique (R) de 8 à 9 est recommandée en plaine et plus de 9 en montagne.
La couverture pourra être réalisée en bac acier ou en tuiles. Le coût de ces 2 matériaux est à peu près le même, mais la tuile est plus longue à poser. Les coûts sont donc, in fine, superieurs.
Menuiseries bois ou PVC

Pour vos portes et fenêtres, il sera possible d'opter pour différents matériaux, chacun ayant ses propres avantages et inconvénients :
- Les menuiseries en PVC constituent, selon notre avis, le meilleur rapport qualité-prix. Elles sont isolées avec gaz argon et l'entretien est minimum. Les couleurs sont déclinées à l'infinis, mais le blanc reste le moins coûteux. Une bonne alternative est d'opter pour une couleur anthracite à l'extérieur (rappel de la couverture) et blanche à l'intérieur (pour la luminosité).
- Les menuiseries en bois sont un peu plus coûteuses qu'en PVC, mais il est possible de trouver de belles menuiseries en résineux pour des tarifs abordables. L'entretien est plus important, mais le look est résolument plus traditionnel.
- Les menuiseries en aluminium (ou en bois-aluminium) seront à un prix double ou triple de celui du PVC. Ce sont des produits qualitatifs, mais ils font vite gonfler la facture.
Notre conseil : optez pour des menuiseries à double vitrage sur les orientations ensoleillées et du triple vitrage au Nord et à l'ombre.
Option : Chalet habitable de 80m² avec garage

Nous proposons ce même modèle de chalet avec un garage de 25m² accolé et dans le prolongement du chalet/de la toiture. Ce garage pourra être séparé en 2 espaces :
- Stockage de la voiture pour 16m²
- Cellier pour 9m²
Le plan du chalet pourra alors être partiellement modifié pour créer une porte de service intérieure entre le garage et le chalet.
La belle hauteur sous plafond vous permettra de créer un stockage supplémentaire en mezzanine.
Questions fréquentes
FAQ — Chalet en bois habitable 80 m² (plain-pied) : plan, isolation, fondations, prix
- Emprise au sol : 100 m²
- Surface habitable : 86 m²
- Chambres : 3
- Hauteur totale : 4,30 m
- Pente de toit : 35°
- Débords : 50 cm en bas de pente et 80 cm aux pignons
- Terrain plat, non rocheux/non argileux : pieux vissés, dalle béton ou vide sanitaire.
- Terrain argileux : fondations profondes ou radier superficiel.
- Terrain en pente : pieux vissés conseillés ; sous-sol possible, avec dalle bois isolée (≈ 20 cm) si pieux.
Pour caractériser le terrain et valider le type de fondations adapté. Cette étude (quelques centaines d’euros) peut être demandée au permis de construire et doit être fournie par le vendeur en cas d’achat de terrain.
- Ossature bois : montants ≥ 145 mm + isolation complémentaire (intérieure ou extérieure) pour viser R ≈ 5–6.
- Bois massif (madriers) : 44 mm en plaine, ≥ 68 mm en montagne, avec doublage isolant respirant (semi-rigide type laine de roche/laine de bois) en intérieur ou extérieur.
Bardage bois (pin autoclave, douglas, mélèze) pour un style alpin. Possibilité de fibro-ciment ou composite (sans entretien) si autorisé localement. La façade enduite/crépie n’est envisageable que sur des murs ossature bois.
- Charpente traditionnelle : plus coûteuse, mais plafond cathédrale apparent.
- Charpente à fermettes : plus économique, plafond standard (≈ 2,50 m) et combles utiles (VMC).
- R conseillé : 8–9 en plaine, > 9 en montagne.
Bac acier ou tuiles : coût matériaux comparable, mais la tuile est plus longue à poser, donc plus chère au final.
Oui : option garage accolé 25 m² (dans le prolongement de la toiture), scindable en 16 m² voiture + 9 m² cellier. Possibilité d’ouvrir une porte de service vers le chalet et de créer du stockage en mezzanine grâce à la hauteur sous plafond.
Prix moyens des constructeurs pour ce modèle :
| Formule | Budget mini | Budget moyen | Budget supérieur |
|---|---|---|---|
| Autoconstruction | 77 400 € | 94 600 € | 111 800 € |
| Hors d’eau & hors d’air | 120 400 € | 137 600 € | 154 800 € |
| Prêt à décorer | 163 400 € | 180 600 € | 215 000 € |
| Clé en main | 180 600 € | 197 800 € | 240 800 € |
| Passif / bioclimatique | 258 000 € | 301 000 € | 344 000 € |
Les prix incluent la garantie décennale des constructeurs. Les écarts reflètent la localisation (plaine/montagne) et le niveau de finitions.
- Kit autoconstruction : fourniture murs isolés, charpente, couverture, portes & fenêtres ; montage à votre charge (matériaux seuls).
- Hors d’eau & hors d’air : fondations (dalle ou pieux) + kit avec montage ; vous réalisez le second œuvre et les finitions.
- Prêt à décorer : HEHA + second œuvre (cloisons, isolation, électricité, plomberie) ; restent peintures et sols.
- Clé en main : prêt à décorer + peintures, revêtements de sol, cuisine & salle de bain (sur demande).
Prix de ce chalet habitable de 80m² livré et monté
Le budget à prévoir pour votre projet dépendra de nombreux facteurs et notamment la localisation du terrain et le type de matériaux choisis pour les finitions/revêtements.
Nous avons donc défini 3 scenarios pour établir votre budget :
Budget mini : correspond à un chantier en plaine, avec des finitions d'entrée de gamme et sans problématique particulière.
Budget moyen : correspond à un chantier classique sans problématique majeure et avec des finitions moyen de gamme. C'est le budget à retenir dans la plupart des cas.
Budget supérieur : correspond à un chantier en zone de montagne (isolation et structure renforcée), et/ou à des finitions haut de gamme.
Les prix incluent la garantie décennale des constructeurs.Prix moyen des constructeurs pour ce modèle
| Formule de construction | Budget mini | Budget moyen | Budget supérieur |
|---|---|---|---|
| Autoconstruction | 77 400 € | 94 600 € | 111 800 € |
| Hors d'eau et hors d'air | 120 400 € | 137 600 € | 154 800 € |
| Prêt à décorer | 163 400 € | 180 600 € | 215 000 € |
| Clé en main | 180 600 € | 197 800 € | 240 800 € |
| Passif / bioclimatique | 258 000 € | 301 000 € | 344 000 € |
Ce que comprend chaque formule
Kit autoconstruction : les prix incluent la fourniture des murs isolés, de la charpente, de la couverture et des portes et fenêtres. Vous prenez en charge l'ensemble du montage. Seuls les matériaux sont donc comptés.
Hors d'eau et hors d'air : les prix incluent les fondations (dalle ou pieux vissés) + le kit autoconstruction avec son montage. Il vous restera à prendre en charge le second oeuvre (cloisons, isolation, électricité, plomberie) et les finitions.
Prêt à décorer : les prix incluent le hors d'eau hors d'air + le second oeuvre (cloisons, isolation, électricité, plomberie). Il vous restera à prendre en charge les peintures et revêtements de sol.
Clé en main : les prix incluent le prêt à décorer + les peintures + revêtements de sol + cuisine et salle de bain sur demande.